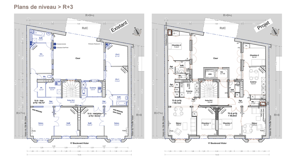
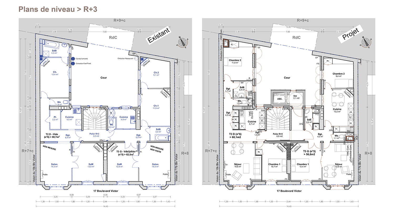
Programme – Réhabilitation de 14 logements sociaux + 2 commerces
Maître d’ouvrage – Paris Habitat
Adresse – 17 Bd Victor, 75015 Paris
Architecte + économiste – B. GAUTHIER
BET – POUGET Consultants
SHAB – 763 m2
Budget – 1,5 M € ht
Calendrier – Livré en 2023
Performance énergétique – Plan Climat / NF Habitat HQE / Effinergie Réno (de 275 à 73 kWh)
Entreprise TCE – EIFFAGE construction amélioration de l’habitat