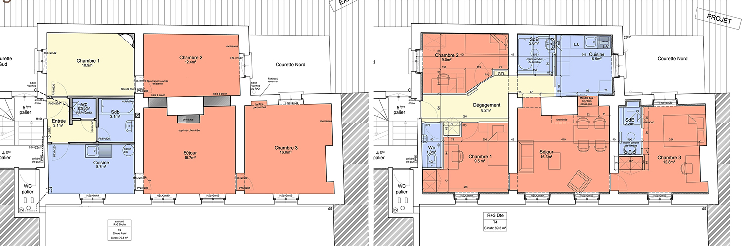
Programme – Réhabilitation de 8 logements sociaux
Maître d’ouvrage – SIEMP
Adresse – 75 rue Riquet, 39 rue Pajol, 13 rue Capron, 112 bd de la Chapelle, 75018 Paris
Architecte + économiste – B. GAUTHIER
Surface utile- 346 m2
Budget – 0,46 M € ht
Calendrier – Livré en 2013